物件情報
事業用兼居中古戸建
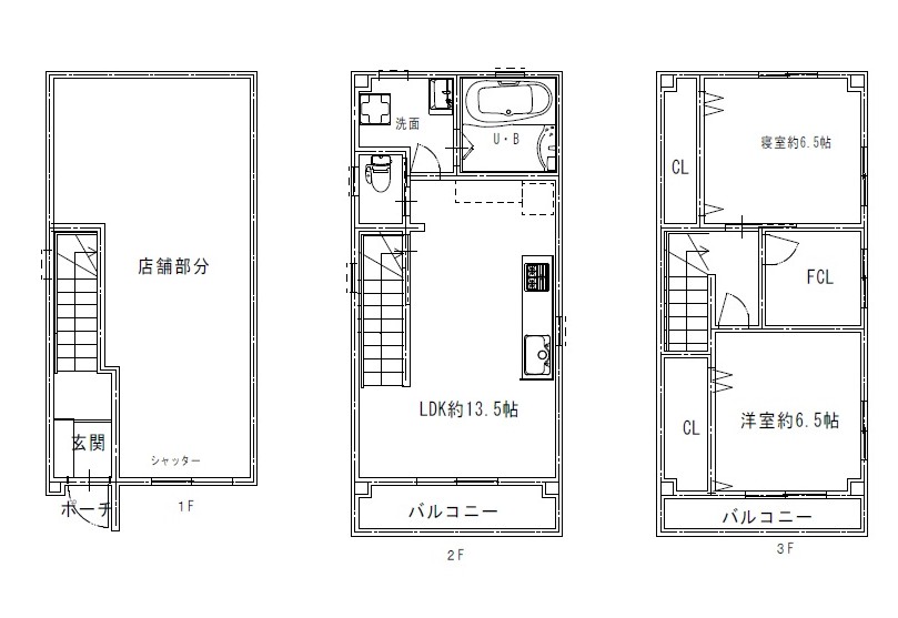
中古 2LDK+事務所兼店舗
====オーナーチェンジ物件====
1階店舗部分のみを事務所として賃貸中です!
居住スペースも賃貸として、トータル収益物件として検討可能♪
■現在、事務所部分を77000円/月で賃貸中
※2026年8月末日までは44000円/月になっております
■居住スペース
従来の3LDKの間取り!
2階3階を住居としても活用可能!
■駅徒歩5分
■スーパーコノミヤが目の前
■周辺施設がとても充実しております
取扱い会社
大阪府大阪市天王寺区上之宮町11-10ワカミズビル401
ふたば不動産販売株式会社
TEL 06-6796-8151
自己資金や住宅ローンに不安な方でも、お気軽にお問合せ下さい。
特徴ピックアップ
太陽光発電システム / スーパー 徒歩10分以内 / 市街地が近い / 駅まで平坦 / シャワー付洗面化粧台 / 温水洗浄便座 / 浴室に窓 / 平坦地
ローンシミュレーション
- 毎月返済額
- 97,394円
- 借入金額
- 3,380万円
- 金利
- 1.125%
店頭金利3.125% 金利優遇2.0%での計算となります。
あくまで概算ですので借入時期・金融機関により異なります。
基本情報
- 販売価格
- 3,380万円
- 住所
- 東大阪市瓜生堂2丁目
- 交通
- 近鉄奈良線「若江岩田」駅
徒歩約5分
- 土地面積
- 56.11㎡
- 道路
- 東側 幅員4.7m接道4.8m
- 私道負担
- 有 約10㎡
- セットバック
- 無し
- 用途地域
- 第一種住居地域
- 地目
- 宅地
- 建ぺい率
- 60%
- 容積率
- 200%
- 間取り
- 3LDK
- 総戸数
- 1戸
- 建物面積
- 延床面積 99.09㎡
1階 33.21㎡ 2階 32.30㎡ 3階 33.57㎡
- 構造・工法
- 鉄骨造
- 完成時期(築年月)
- 平成22年6月
- 小学校区
- 玉美小学校
- 中学校区
- 若江中学校
- 取引態様
- 仲介(専任)
注意:学校区につきましては地域により調整・変更等がございますので必ずお客さま、ご自身で各地域の教育委員会にてご確認下さい。









